Doctoral student of Namangan State Technical University, Uzbekistan, Nukus
CALCULATION OF STRUCTURAL INSULATED PANEL BUILDINGS FOR SEISMIC EFFECTS
ABSTRACT
The article analyzes the seismic resistance of two-story buildings with SIP panels based on theoretical calculations. Using the energy method, the oscillation periods of the layer mass and wall stiffness were determined. The calculated transverse and longitudinal forces for seismic zones of 7, 8, and 9 points were calculated, and their distribution by floors was analyzed. It has been shown that the influence of openings reduces wall stiffness by 15-20%. The results are consistent with the studies of Rammer, Terentiuk, Young, and Sugiyama, and it was found that the forces on the first floor are higher than on the second. It was noted that the relative displacement values are 2-2.35%, which is close to the Eurocode 8 limitations. The research results confirm that this is a reliable methodology for seismic assessment of buildings with SIP panels.
АННОТАЦИЯ
В статье на основе теоретических расчетов проанализирована сейсмостойкость двухэтажных зданий из SIP-панелей. С помощью энергетического метода определены периоды колебаний по массе слоя и жесткости стенки. Рассчитаны расчетные поперечные и продольные силы для сейсмических зон 7, 8 и 9 баллов, проанализировано их распределение по этажам. Показано, что влияние проемов снижает жесткость стен на 15-20%. Результаты согласуются с исследованиями Rammer, Terentiuk, Yang и Sugiyama было обнаружено, что силы на первом этаже выше, чем на втором. Отмечено, что значения относительного перемещения составляют 2-2,35%, что близко к ограничениям Eurocode 8. Результаты исследования подтверждают, что это методология для сейсмической оценки зданий с SIP панелями.
Keywords: SIP panel, seismic calculation, vibration period, floor strength, transverse direction, longitudinal direction, energy method.
Ключевые слова: SIP-панель, сейсмический расчёт, период колебаний, жесткость этажа, поперечное направление, продольное направление, энергетический метод.
Introduction. In the 21st century, issues of sustainable development, energy efficiency, and economic feasibility in the construction sector are becoming particularly relevant in all developed and developing countries. The fact that a significant part of energy consumption in human life is accounted for by buildings makes increasing their efficiency a strategic task. From this point of view, it is becoming necessary that modern construction technologies provide not only rapid and cost-effective construction opportunities, but also energy, resource saving, and environmental safety.
One such innovative solution is the technology of structured insulated panels (SIP). It is a lightweight, durable, and highly efficient structure consisting of double-sided OSB (Oriented Strand Board) or plywood boards and a thermal insulation material placed between them. This technology was initially widely used in the USA and European countries and quickly gained popularity in many countries around the world. The advantages of SIP-panel buildings, along with their fast construction process, energy efficiency, and cost-effectiveness, are their stability in areas with a high risk of dynamic impacts (seismic, hurricane winds...), while the issues of construction in areas with high humidity remain unresolved. Although the lightness of the structure provides certain advantages, it has high sensitivity to dynamic forces under the influence of earthquakes, and due to its lightness, it is necessary to consider its susceptibility to wind effects. Determining the reliability of SIP buildings in 7÷9 magnitude seismic zones, such as in the countries of Central Asia, Turkey, the Caucasus region, Japan, and the western regions of the USA, requires separate scientific research.
Uzbekistan is also among the countries with a high seismic risk, which is especially important in construction in the southeastern parts of the region. Since most regions of the country are located in the 7-9 point zone, it is necessary to ensure the seismic resistance of any building structure. Therefore, the assessment of the resistance of residential buildings to seismic effects, the calculation of their strength and stability, built on the basis of SIP technology, is of great theoretical and practical importance.
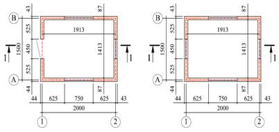
Results and methods. The object of the research is a two-story SIP panel building with dimensions of 1500x2000 mm, modeled at a scale of 1:2. The building's floor heights are 1587 and 1350 mm, and the walls are made of SIP panels (Fig. 1). The sum of the total loads on the first and second floors of this building was Q1=1,72 kN and Q2=0,736 kN. The modulus of elasticity of the SIP panel is E=3500 MPa, and the calculated compression resistance is R=13 MPa [1].
|
a) b)
|
c)
|
|
Figure 1. Wall plan and section of a two-story SIP panel building: a) plan of the first floor of the building; b) plan of the second floor of the building; c) section of the building. |
|
In order to simplify the calculation, based on the results of the QMQ [2, pp. 12-30] and the obtained experimental results, the following sequence of engineering calculation methods was performed [3,4]:
First, the seismic calculation scheme of the building was determined (Fig. 2):
|
Figure 2. Calculation scheme |
We determine the building masses by floor: m1 = Strength of walls of the first floor in the longitudinal and transverse directions: а) 1-2 axis in a transverse direction - V1= ? R=13 MPa; R=13×0,9=11,7 МPа; Еben= 3500 МPа. The displacement modulus equals: G=0,25 × Е = 0,25 × 3500 МПа = 785 МПа. |
The area of the transverse wall is: F area =1,587 × 0,087=0,14 m2.
Since there is a gap in this part of the wall, its area is determined as follows:
F opening= 0,45×0,087=0,04 m2;
Therefore, from the formula, we determine the stiffness coefficient g opening - the recess.
; gopening =/Kosbergenov.files/image009.png)
The wall stiffness along axes 1-2 is determined as follows:
V1-2=0.83× h1× F× G × gopening=0,83×1,587×0,14×785×0,664=96,12 МN×m.
Since the dimensions of the transverse walls and the openings in them are the same, the stiffnesses in them are equal (table 1).
V1=V2= 96,12 МN× m.
In this analysis, the stiffness of the remaining A and B axes and the walls of the second floor in the transverse and longitudinal directions was determined (table 1). With the help of the determined values, the displacements of the building floors were calculated. According to it, longitudinal displacements occur on the first floor
on the second floor
to, the transverse displacements on the first floor were
and on the second floor
.
Table 1.
Total values of wall stiffness in the transverse and longitudinal directions.
|
Axes |
Number of floors |
1-2-axis walls |
Summation value |
|
In the transverse direction |
|||
|
1-2 |
1 |
1- axis =96,12; 2- axis =96,12 |
192,24 |
|
2 |
1- axis =81,77; 2- axis =81,77 |
163,54 |
|
|
In the longitudinal direction |
|||
|
A-B |
1 |
A- axis =109,2; B- axis =109,2 |
218,4 |
|
2 |
A- axis =92,85; B- axis =92,85 |
185,7 |
|
Vibration periods were determined using the energy method using displacements. During the calculations, the oscillation periods of the walls in the transverse direction T1 = 0.0094 sec; T2 = 0.0057 sec, the oscillation periods of the longitudinal walls T1 = 0.009 sec; It was determined that T2 = 0.005 sec.
At the next stage, the seismic forces acting on the building were calculated for seismic zones of 7, 8, and 9 points using the following formula:
/Kosbergenov.files/image014.png)
where: α - seismic coefficient, taken depending on the point of the territory; Qk - calculated weight of the layer (kN); Wi - function of the oscillation period;; Kδ - dynamic factor; η - coefficient of energy dissipation of the structure; K0, Kn, Ket, Kr - coefficients depending on the type of structure.
As a result of the calculations, the values of seismic forces acting on the longitudinal and transverse walls of two-story SIP-panel buildings by floors are presented in Figures 3 a, b.
|
а)
|
b)
|
|
Figure 3. Seismic forces of 7, 8, and 9 points along the transverse and longitudinal directions of the walls on the floors of the building: a) for the first floor; b) for the second floor |
|
Conclusion. When comparing the obtained results with the research of world scientists, their high degree of consistency was observed. In particular, in this study, it was established that the seismic forces in the transverse direction on the 1st floor are 212 N, and in the longitudinal direction 211 N, which is 2-2,5 times greater than on the second floor. This result is consistent with the results obtained in the research works of Rammer and Williamson[5], since they also showed that the main lateral forces in the walls of the SIP are concentrated on the first floor and receive a large part of the energy.
When comparing the potential and kinetic energies in the transverse and longitudinal directions, it was found that the values in the transverse direction are approximately 10-15% higher. This situation was also noted in the studies of Terentiuk and Memari [6], who showed that the direction of SIP panel walls has anisotropy and there is a lateral change in stiffness depending on the direction of loading.
The results obtained on the influence of openings are also consistent with international studies: in this calculation, openings reduce wall stiffness by 15-20%. This value is close to the 15-25% stiffness loss obtained in the trials of Yang et al. [7]. Therefore, when designing SIP-panel buildings, the number and placement of openings are of great importance.
The maximum relative deformation of a two-story SIP panel building in terms of relative displacement (drift) values was around 2,1-2,35%, which indicates that it is close to or slightly exceeds the 2% limit of the requirement of the state standard of European countries Eurocode 8 [8]. This is also noted in the SPF methodology proposed by Donovan and Memari [9] SIP buildings can be susceptible to landslides in high-score areas. Oscillatory table tests conducted by Sugiyama [10] also noted that the relative displacement limits in SIP panel structures are within 2-3%. Therefore, the obtained results are consistent with international studies, which confirm that SIP technology is a reliable platform for seismic safety.
From this, it can be concluded that the results of this study are consistent with the research results of world scientists and confirm the applicability of the proposed methodology for dynamic analysis of SIP-panel buildings in seismic regions.
References:
- ГОСТ Р 56309-2014. Плиты древесные строительные с ориентированной стружкой (OSB). - М.: Стандартинформ, 2014. - 15 с.
- ҚМҚ 2.01.03-19. Зилзилабардош қурилиш. – Тошкент: Ўзстандарт, 2019. – 12-30 бетлар.
- Создание сейсмостойких конструкций домов возводимых на основе местного сырья и экспериментальное исследования, а также разработка эффективных технологий строительства [Текст]: Отчет НИР (заключительный за 2005 г.): 2003-2005 ГНТП-8.32 / С.Ж.Раззаков // НамИПИ. -Наманган, 2005. - 179 с.
- Раззаков С.Ж. Маҳаллий материаллардан тикланадиган уйларни фазовий бикрлигини таъминлаш учун ички темирбетон ўзак стержень билан кучайтириш [Матн] / С.Ж.Раззаков, Қ.И.Рўзиев, Б.С.Холмирзаев // Магистрантларининг VII-анъанавий конференцияси материаллари тўплами / НамМПИ. - Наманган, 2007. - Б. 80-82.
- Rammer, D.R., Williamson, T. Исследование поперечной жесткости SIP-стен при сейсмических воздействиях // Journal of Structural Engineering. – 2020. – Т.146. – №7. – С. 04020112.
- Terentiuk, S., Memari, A.M. Сравнительный анализ сейсмостойкости SIP-стен и деревянных каркасных стен // Journal of Architectural Engineering. – 2014. – Т.20. – №2. – С. 04013008.
- Yang, H.F., Dolan, J.D., Hindman, D.P. Cyclic performance of structural insulated panel shear walls // Journal of Structural Engineering. – 2012. – Т.138. – №6. – С. 803–812.
- EN 1998-1:2004 Eurocode 8. Design of structures for earthquake resistance. – Brussels: CEN, 2004. – 229 p.
- Donovan, L.T., Memari, A.M. Seismic design factors for buildings with structural insulated panels // Journal of Architectural Engineering. – 2015. – Т.21. – №3. – С. 04014039.
- Sugiyama, T. Shake-table test of timber frames with SIP wall panels under dynamic loading // Journal of Earthquake Engineering. – 2010. – Т.14. – №8. – С. 1158–1178.
/Kosbergenov.files/image001.jpg)
/Kosbergenov.files/image002.jpg)
/Kosbergenov.files/image003.jpg)
=
=175 kg; m2 =
=
=75 kg./Kosbergenov.files/image015.jpg)
/Kosbergenov.files/image016.jpg)