д-р техн. наук, профессор, Санкт-Петербургский политехнический университет Петра Великого, РФ, г. Санкт-Петербург
МОДЕЛИРОВАНИЕ ПРОЦЕССА ГОРЯЧЕЙ ШТАМПОВКИ ПОЛЫХ ПОКОВОК С ПОСЛЕДУЮЩЕЙ РАЗДАЧЕЙ
АННОТАЦИЯ
В статье на основе компьютерного моделирования анализируется процесс точного формообразования поковок полых деталей типа втулок и фланцев, изготавливаемых горячей штамповкой. Процесс включает штамповку на молоте, состоящую из осадки и предварительной штамповки с обычными штамповочными уклонами. Далее поковка проходит обработку на обрезном прессе, которая состоит из последовательных операций обрезки облоя, прошивки перемычки и раздачи цилиндрической части. Компьютерное моделирование, проведенное в расчетном комплексе Q-form, показало, что в результате калибровки достигается требуемая точность цилиндрической части поковки и, соответственно, обеспечивается снижение массы поковки и сокращение объема дальнейшей механической обработки. В процессе моделирования была выявлена возможность образования складки металла при предварительной штамповке и найдены пути ее предотвращения.
ABSTRACT
The article analyzes the process of precise forming of hollow forgings parts such as bushings and flanges produced by hot forging using computer modeling. The process involves hammer forging consisting of upsetting and pre-forging with conventional forging ramps. Next, the forging undergoes processing on a trimming press, which consists of successive operations of trimming the flash, punching a hole and expansion the cylindrical part. The computer simulation carried out in the Q-form calculation complex showed that as a result of calibration, the required accuracy of the cylindrical part of the forging is achieved and, accordingly, a reduction in the mass of the forging part and a reduction in the volume of mechanical processing are ensured. At the simulation, the possibility of metal folding during pre-forging identified and ways to prevent it were found.
Ключевые слова: горячая штамповка, полые детали, компьютерное моделирование, раздача, точность деталей.
Keywords: hot forging, hollow parts, computer simulation, expansion, precision of the parts.
Введение
В заготовительном производстве была и остается актуальной проблема повышение эффективности, т.к. именно от этого производства зависят важнейшие показатели металлоемкости и трудоемкости изготовления готовых деталей. Для кузнечно-штамповочного производства является важной задачей разработка технологий, позволяющих изготавливать точные поковки, т.е. поковки с минимальными припусками. Работы в этом направлении активно начались в середине ХХ века и непрерывно продолжаются. Наряду с предложения в виде патентов [1-3] по проектированию отдельных процессов, появились более общие решения, построенные на анализе процессов штамповки [4-5], в том числе с использованием компьютерного моделирования [6]. Однако большинство предложенных способов точной горячей штамповки, в том числе штамповки в разъемных матрицах и безоблойной штамповки, требуют точного дозирования объема заготовки, сложных конструкций формообразующих штампов [7-9].
Одна из возможных технологий точного изготовления широко распространенных полых поковок это горячая штамповка с обычными штамповочными уклонами с последующей раздачей и калибровкой стенок втулочной части поковок.
Цель работы: показать возможности технологии горячей штамповки полых поковок с уменьшенным припуском, при котором формообразование завершается раздачей поковки в специальном штампе, где совмещаются операции, выполняемые на обрезном прессе.
Материалы и методы исследования
Пустотелые поковки с фланцами получили широко применяются в различных отраслях, включая автомобилестроение, судостроение энергетику и др. Традиционные методы изготовления штамповкой таких деталей часто сопряжены с рядом проблем, таких как наличие штамповочных уклонов, которые приводят к значительной последующей механической обработке, увеличенным отходам материала, затратам на режущий инструмент и потерям производственного времени.
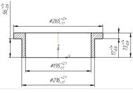
В работе рассмотрен технологический процесс получения поковки «втулки с фланцем» (Рис 1а и б), аналоги которой широко применятся в мощных дизельных установках тепловозов.
Проектирование чертежа поковки (Рис. 1 в и г) сделано с учетом требований ГОСТа [10] и на основе традиционной (классической) методики проектирования [11]. Поковка изготавливается из Стали 10, т.е. относится к группе сталей М, степень сложности С2, класс точности Т4 и исходный индекс 13.
![]() |
![]() |
|
а. |
б. |
![]() |
![]() |
|
в. |
г. |
|
Рисунок 1. Эскиз втулки с фланцем (а), 3-D модель втулки (б), эскиз промежуточной поковки (в), 3-D модель промежуточной поковки (г) |
|
Рассматриваемая технология горячей штамповки включает следующие операции:
- резка прутка диаметром 100 мм при Т=550 °С на мерные заготовки длиной 125 мм на ножницах сортовых кривошипных закрытых - НА1538 с номинальным усилием – 6300 кН:
- нагрев исходных заготовок до температуры 1250ﹾС в индукционной печи;
- осадка заготовки на молоте для удаления окалины и улучшения центрирования в штамповочном ручье до диаметра 175-185мм и высоты 45-50 мм;
- штамповка промежуточной поковки на паровоздушном молоте модели М212, двойного действия с массой падающих частей 2000 кг;
- обрезка облоя, прошивка перемычки, и раздача боковых стенок поковки до вертикального положения на цилиндрической части в специальном штампе на обрезном однокривошипном прессе простого действия модели КБ9534, с номинальным усилием 2500 кН:
Для анализа процесса формообразования поковки и температурного режима штамповки было проведено моделирование всех стадий процесса (Рис. 2) с использованием метода конечных элементов (МКЭ) в программном комплексе QFORM-3D [12] при условиях: начальная температура заготовки 12400C, материал заготовки Сталь 10, коэффициент трения на контактной поверхности инструмента с деформируемым металлом – 0,3.
![]() |
![]() |
|
![]() |
|
а. |
б. |
в. |
г. |
![]() |
![]() |
![]() |
![]() |
|
д. |
|||
|
Рисунок 2. Моделирование процесса штамповки на молоте: а- начало осадки цилиндрической заготовки; б- осадка заготовки; в- начало процесса штамповки: г- поковка после пятого удара молота: д- последовательное формирование поковки в молотовом штампе |
|||
В результате проведенного моделирования было установлено, что требуемая геометрия поковки полностью формируется за пять ударов молота. Однако при этом была выявлена возможность образования складки металла при начале формообразования фланцевой части поковки. На рис, 3 показано, как деформируемый металл, выходя из цилиндрической части втулки, входит в соприкосновение с верхней частью штампа и частично сминается. При дальнейшем сближении половинок штампа образуется складка металла, являющаяся неисправимым дефектом.
![]() |
![]() |
|
а. |
б. |
|
Рисунок 3. Образование складки при втором ударе молота: а- момент начала формообразований фланцевой части; б- образования складки металла |
|
Для устранения складкообразования потребовалось несколько изменить направление течения металла, затекающего во фланец, при втором ударе молота. Предпочтительным является направление течения металла в сторону фланца, и с большей интенсивностью. Увеличение в нижнем штампе радиуса сопряжения между фланцем частью и цилиндрической втулкой позволило выполнить оба эти условия и избежать складок.
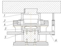
Дальнейшие технологические операции изготовления поковки осуществляются в комбинированном штампе (Рис. 4 а, б) на обрезном прессе. Сначала пуансон 1 проталкивает поковку 2 через обрезную матрицу 4, в результате чего удаляется облой. Далее перемычка поковки прошивается пуансоном 5. После этого полая часть поковки с конической образующей раздается конусной поверхностью пуансона 5 и преобразуется в цилиндрическую втулку.
Отличительной особенностью процесса раздачи (Рис. 4 в, г) является то, что пластическая деформация происходит в локальной зоне в виде кольцевого пятна, перемещающегося внутри трубной части заготовки в сторону фланца. На первом этапе при закрытии штампа в процессе раздачи контактное пятно кольца увеличивается по высоте, а на завершающем этапе происходит калибровка втулки между выталкивателем снаружи и пуансоном изнутри. При этом деформация меняется от растяжения, когда пуансон вклинивается внутрь заготовки, до сжатия, когда заготовка наружной стенкой трубы прижимается к выталкивателю штампа.
|
|
|
|
а. |
б. |
|
|
|
|
в. |
г. |
|
Рисунок 4. Схема инструмента раздачи цилиндрической части поковки, совмещённой с обрезкой облоя и прошивкой перемычки (а); 3-D модель штампа; начальный, (б) и конечный (в, г) этапы моделирования процесса раздачи 1- пуансон обрезной; 2- поковка; 3- выталкиватель; 4- обрезная матрица; 5– пуансон прошивной; 6– рычаг выталкивателя |
|
Усилие при раздаче зависит от угла на конусной части пуансона и от площади в плане кольцевого пятна контакта между пуансоном и поковкой. При этом суммарное значение усилий обрезки облоя, пробивки отверстия и раздачи поковки не превышают половины значения номинального усилия обрезного пресса.
С помощью моделирования было установлено, что температура заготовки на всех переходах деформирования, включая раздачу, не ниже 1000ﹾС. Поддержанию температуры способствовало тепло, выделяемое в результате пластической деформации металла при штамповке. Благодаря этому все деформирующие операции оказалось возможным выполнять с одного нагрева.
Заключение:
- Моделирование технологического процесса горячей штамповки на молоте с последующей раздачей показало возможность получать на последней операции поковки полых деталей без штамповочных уклонов втулочной части.
- Моделирование процесса показало появление складки в деформируемом металле в начальной фазе образования фланцевой части при втором ударе молота, и условия предотвращения складкообразования.
- В ходе анализа температурных режимов определено, что все деформирующие операции можно выполнять, используя один нагрев.
- Расчеты показали, что силовые возможности обрезного пресса достаточны для последовательной обрезки облоя, прошивки перемычки и раздачи.
Благодарность:
Авторы выражают глубокую благодарность компании Q-form за предоставление индивидуальной лицензии на период выполнения данного исследования.
Список литературы:
- Федоров А.В. Молотовый штамп для безоблойной горячей штамповки. Авторское свидетельство SU86034A1, 10.10.1950. Заявка № 405060 от 03.10.1949.
- Андреев Г.В., Кантин В.Г., Кравченко Н.И., Мозеров В.Г., Степаненко А.В., Тиманюк В.А. Способ безоблойной горячей штамповки поковок и штамп для его осуществления. Авторское свидетельство SU 1709644 A1, 10.08.2013. Заявка № 4491549/27 от 10.10.1988.
- Поксеваткин М.И., Поксеваткин Д.М., Поздеев М.С., Зиновьев К.П., Поздеев Р.С. Штамп для безоблойной штамповки поковок из труднодеформируемых материалов. Патент на изобретение RU2248856 C1, 27.03.2005. Заявка № 2003118994/02 от 24.06.2003.
- Артес А.Э., Третьюхин В.В., Бильчук М.В. Применение безоблойной штамповки в разъемных и полузакрытых штампах. Известия Самарского научного центра Российской академии наук. 2012. Т. 14. № 4-5. С. 1199-1201.
- Кузнечно-штамповочное производство. Обработка материалов давлением. 2014. № 8. С. 25-28.
- Филиппова М.В., Темлянцев М.В., Перетятько В.Н., Сметанин С.В. Моделирование в Qform-3d штамповки шестерни из шаровой заготовки. Заготовительные производства в машиностроении. 2016. № 8. С. 14-18.
- Сосенушкин Е.Н., Белокопытов В.В. разработка ресурсосберегающей технологии производства фланцевых поковок на универсальном оборудовании. Вестник МГТУ "Станкин". 2010. № 3 (11). С. 35-41
- В сборнике: Научные преобразования в эпоху глобализации. Сборник статей международной научно-практической конференции: в 4 частях. 2017. С. 11-15.
- Дмитриев Н.В., Радкевич М.М. Разработка технологического процесса изготовления высокоточных поковок. В сборнике: Модели и методы развития технологий машиностроения в условиях цифровизации экономики России. Научные труды Высшей школы машиностроения. Под редакцией А.А. Поповича. Санкт-Петербург, 2022. С. 147-150.
- ГОСТ 7505-89 - Поковки стальные штампованные. Допуски, припуски и кузнечные напуски. [Электронный ресурс]. - Режим доступа: URL: https://gost.ruscable.ru/Index/19/19494.htm (дата обращения: 27.07.2025).
- Семенов Е. И. Ковка и горячая штамповка. Учебник для студентов высших учебных заведений, обучающихся по направлению 150700 "Машиностроение" / Е.И. Семенов; М-во образования и науки Рос. Федерации, Моск. гос. индустр. ун-т. — Москва : МГИУ, 2011. — 414 с. ил.
- Парфенков Н.А. Разработка и исследование процесса горячей штамповки с последующей раздачей: выпускная квалификационная работа магистра, Санкт-Петербургский политехнический университет Петра Великого. Санкт-Петербург, 2025. [Электронный ресурс]. - Режим доступа: URL: https://elib.spbstu.ru/dl/3/2025/vr/vr25-1942.pdf/en/info (дата обращения: 20.07.2025).
/Aksenov.files/image001.jpg)
/Aksenov.files/image002.jpg)
/Aksenov.files/image003.jpg)
/Aksenov.files/image004.jpg)
/Aksenov.files/image005.jpg)
/Aksenov.files/image006.jpg)
/Aksenov.files/image007.jpg)
/Aksenov.files/image008.jpg)
/Aksenov.files/image009.jpg)
/Aksenov.files/image010.jpg)
/Aksenov.files/image011.jpg)
/Aksenov.files/image012.jpg)
/Aksenov.files/image013.jpg)
/Aksenov.files/image014.jpg)
/Aksenov.files/image015.jpg)
/Aksenov.files/image016.png)
/Aksenov.files/image017.jpg)
/Aksenov.files/image018.jpg)